Under Construction: Est Completion 31 August 26

SDA HPS 2 Bedroom Villa plus OOA Kilsyth, Vic | 198

Eothen Ln, Kilsyth VIC 3137, Australia

Buy or rent: rent
Price not listed
2 Bath
2 Bed
1 Garage
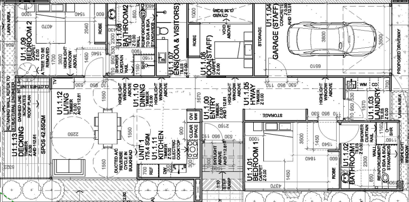
  • SDA Bedrooms: 2
  • Bathrooms: 2
  • Garage: 1
  • Accommodation Length: ongoing

SDA Information

SDA Design Category: High Physical Support

SDA Building Type: Villas, Duplexes and Townhouses

SDA Location: VIC

Onsite Overnight Assistance OOA: 1

Number of Vacancies: 2

Who can live here :


Welcome to your new home in Kilsyth – a beautifully designed High Physical Support Villa that offers comfort, security, and the freedom to live life your way. Purpose-built for NDIS participants, this home is where accessibility meets modern living.

Property Features:

  • 2 Spacious Bedrooms – Room to relax with privacy and comfort
  • 2 Accessible Bathrooms – Easy-to-use, fully compliant with accessible standards
  • OOA Room (Onsite Overnight Assistance) – Peace of mind with 24/7 support potential
  • 1-Car Garage – Safe, secure parking with step-free access
  • Heating & Cooling System – Stay comfortable all year round
  • Fire Sprinkler System – Built-in safety for added protection
  • Pets Allowed – Pet-friendly!
  • Private Outdoor Area – Enjoy fresh air, sunshine, and a bit of green space

Living in Kilsyth

Kilsyth is a tranquil residential suburb, perfect for anyone seeking a peaceful suburban setting with convenient access to Melbourne's amenities.

  • Public Transport - Extremely well connected with bus stops a stone through from your door, and Mooroolbark Station is approximately 2.5 km away, providing train services to Melbourne CBD.
  • Shopping & Amenities - Churinga Shopping Centre just down the road, less than 1km away as well as an abundance of shopping complexes within close proximity, offering supermarkets, retail stores, and dining options.
  • Healthcare & Medical Services - Four local GPs within 1km, and Eastern Health Maroondah Hospital only 6.5km away.
  • Parks & Outdoor Spaces - Kilsyth offers a serene environment with abundant green spaces, including the nearby Elizabeth Bridge Reserve down the street and the stunning Dandenong Ranges not too far away.

Your new home in Kilsyth is ready—designed with care, built for independence, and waiting for you.

Contact us now to arrange a private viewing or learn more!


Properties Features

OOA Onsite Overnight Assistance
Fire Sprinklers
Cooling
Pets allowed

Tenants

  • Do all bedrooms have their own bathroom or ensuite: Yes
  • Total number of people sharing: 2
  • Gender and age of current housemates:
  • Suitable for housemates who:

Support

  • Onsite Overnight Assistance: Yes
  • Can the tenant bring their own supports ?: Yes
  • Support: No
  • Type of support provided at this property:
  • Support provider name:
  • Support provider website:

Contact Provider

To make an enquiry or arrange an inspection, please use the form below or call 1300 832 373.

CAPTCHA